Offers in Excess of £375,000
Semi-Detached House | 3 Bedrooms | Freehold
London Road, Aveley
Key Features
- FIVE ROOMS ACROSS UPPER FLOORS (LOFT ACCOMMODATION SUBJECT TO VERIFICATION)
- 1930S BAY-FRONTED SEMI-DETACHED HOUSE
- IN NEED OF COMPLETE MODERNISATION
- NO ONWARD CHAIN
- EARLY VACANT POSSESSION
- REAR GARDEN APPROX. 140FT IN DEPTH
- DETACHED GARAGE AND DRIVEWAY
- OPEN-PLAN LOUNGE/DINER (APPROX. 23'5 FT)
- LEAN-TO OVERLOOKING REAR GARDEN
- CONVENIENT ACCESS TO A13 & M25
- CLOSE TO LAKESIDE SHOPPING CENTRE
- VIRTUAL TOUR AVAILABLE
- KEYS HELD
- SOLE AGENTS
Property Details
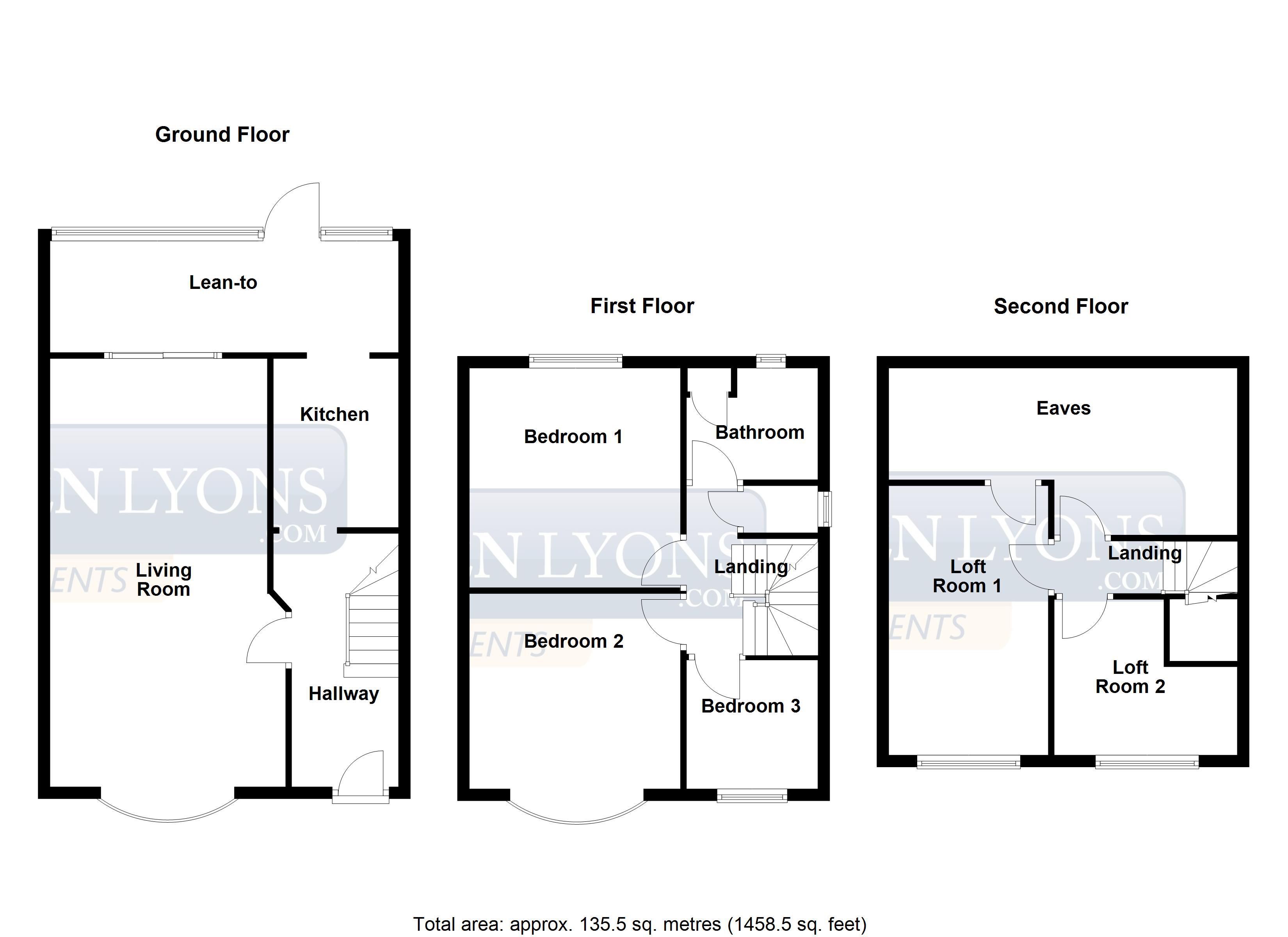
Offering excellent potential to create a substantial family home, this 1930s bay-fronted semi-detached property is arranged over three floors and requires complete modernisation. The property is offered with no onward chain and early vacant possession. Externally, the property benefits from a driveway leading to a detached garage and occupies a generous plot. The rear garden measures approximately 140ft in length offering scope for extension or landscaping, subject to the necessary planning permissions and consents. The internal accommodation comprises an entrance hallway with stairs rising to the first floor, an open-plan lounge/diner measuring approximately 23'5 ft, a kitchen, and a lean-to overlooking the rear garden. On the first floor, there are three bedrooms, a family bathroom, and a separate WC. The second floor provides two additional rooms and access to loft storage. Please note, we have not been provided with copies of building regulations approval for the loft conversion, and buyers should rely on their own investigations regarding its status and use. The property is conveniently located with access to the A13 and M25 and is within proximity to Lakeside Shopping Centre, making it well positioned for commuters and local amenities. Viewings are strongly recommended to appreciate the potential on offer.Accommodation Comprises:-
GROUND FLOOR
Entrance Hallway
Stairs leading up to the first floor landing, radiator, wood effect laminate floor, two under stairs storage
cupboards
Lounge/Diner
23'5 (7.14) x 12'1 (3.68)
Single glazed bay window to front, single glazed sliding door to lean-to, radiator
Kitchen
8'10 (2.69) x 7' (2.13)
Cooker space, base level and wall mounted units, tiled splashback, archway to lean-to
Lean-to
19'2 (5.84) x 5'9 (1.75)
Single glazed windows to rear, door to garden, stainless steel sink and drainer
FIRST FLOOR
Landing
Stairs down to the ground floor hallway, stairs up to the second floor, obscure single glazed window to
side
Separate wc
Single glazed window to side, low flush wc
Bathroom
Bath, pedestal wash hand basin, radiator, tiled splashbacks, storage cupboard
Bedroom Two
11'10 (3.61) x 10'10 (3.30)
Single glazed bay window to front, radiator
Bedroom One
12'3 (3.73) x 11'11 (3.63)
Single glazed window to rear, radiator
Bedroom Three
7'4 (2.24) x 7'2 (2.18)
Single glazed window to front with missing glazing, radiator
SECOND FLOOR
Landing
Stairs down to the first floor, door to storage area
Loft Room One (subject to regulations)
14'8 (4.47) x 7'11 (2.41)
Double glazed window to front, radiator, door to storage area
Loft Room Two (subject to regulations)
8'9 (2.67) x 7'10 (2.39)
Double glazed window to front, radiator
EXTERIOR
Frontage
Open plan frontage with driveway to side
Garage
Potentially asbestos roof, doors missing
Rear Garden
Approximately 140ft in depth, mainly laid to lawn, patio area, pedestrian side access
GENERAL INFORMATION The below information has been supplied by the Vendor and we recommend that this be checked by your Solicitor before entering into any purchase commitment
Disclaimer Please note that the sale of this property is subject to the grant of probate, which is currently pending. As such, completion of any transaction cannot take place until probate has been formally granted.
In addition, we understand that the property is currently unregistered at HM Land Registry. A purchaser may therefore be required to undertake first registration of the title upon completion. Buyers are advised to seek independent legal advice regarding the implications, process, and associated costs of registration.
VIRTUAL TOUR Owen Lyons virtual tour of this property can be provided on request. Please contact the office for further information.
COUNCIL TAX BAND C, 2026/27 Approx. £2,004.16 Per Annum
Tenure Freehold
VIEWING By appointment via Owen Lyons Estate Agents, Tel: 01375 399 399.
MORTGAGE ADVICE Owen Lyons introduces to Susan Bray of SJB Financial Ltd, Susan will see you in her office or visit you after work at your home, ask our agent for Susan's details
AGENTS NOTE 1. We have been advised by the Vendor that all the heating equipment and appliances mentioned within these particulars were functional at the time of our inspection. However, due to Owen Lyons Estate Agents not being professionally qualified in this field, we would recommend that they are thoroughly tested by a specialist (i.e. Gas Safe registered) before entering into any purchase commitment.
2. Although our vendor/s has advised us that all fixtures, fittings and chattels mentioned within these details will remain, we strongly recommend verification by a solicitor before entering into any purchase commitment.
3. Floorplans-where included may not be to scale and accuracy is not guaranteed.
4. Photographs are taken using a 10-22mm Wide angled lens and I Phones.
5. Property title Plan Disclaimer: This plan is provided by www.onthemartket.com we endeavour to make our particulars as accurate as possible but as this has been provided by a third party we recommend that you verify via your solicitor
6. Referral Fees - Please note a referral fee of up to £360.00 including VAT per transaction will be received from any referred solicitor upon completion. If Owen Lyons have introduced Susan Bray of SJB Financial Ltd an introducer fee of 30% of the net initial commissions received by the Advisor from any life office, mortgage lender or client for business transacted on behalf of the introduced customer. The Introducer's remuneration becomes due upon receipt of cleared funds by the Advisor.
ADDITIONAL NOTES Draft details Awaiting Vendors Approval
We are covered by the ARLA Client Money Protection Scheme
